/
Data Last Updated: 05/30/2026 17:37 PT
$439,900
45days on marketSold$463,000 · April 20, 2026
Send a tour request for 584 SE 12TH AVE, Hillsboro, OR, 97123.
Hand-routed to Nate Brantley, Principal Broker & Founder. You can expect a same-day reply during business hours.
Your contact details stay private to our team and are only used to coordinate this showing.
Sign in once with your email to send this showing request and keep spam out of the lead system.
We do not post your info publicly or share it outside your showing request.
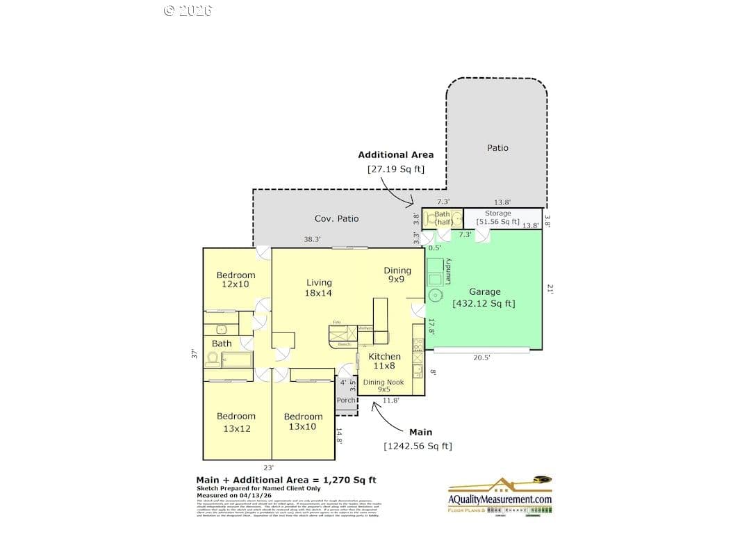
This home sits in Hillsboro. The home was built in 1956, set into the rhythm of the neighborhood.
Perfect Starter Home on Large Lot! Tray Ceilings Add Beautiful Character to Living Space w/Wood-Burning Fireplace + Hardwood Floors Throughout Much of Home. Spacious Kitchen w/Breakfast Nook, Stainless Steel Appliances, New Cooktop, Built-in Oven + Free-Standing Refrigerator. Open Dining Room w/Views of Backyard. Generous Bedrooms + Full Bath w/Laminate Tile Floors + Tub/Shower. 3rd Bedroom Features Exterior Entry. Half Bath Located in Garage--Convenient After Working or Playing Outdoors. 2 Car Garage w/Laundry Hookups + RV Parking. Endless Possibilities on 0.21 Acre Lot--Fully Fenced Backyard w/Covered Patio + 2nd Patio, Raised Beds + Water Well. Tons of Space for Entertaining or Starting Your Next Outdoor Project. NEW Exterior Paint! Per Previous Owners: New Electrical Panel '24. New Minisplit for Heating + Cooling '20. Roof replaced in '12. Incredibly Convenient Location Blocks to Downtown Hillsboro Restaurants, Stores, Rec Center, Coffee Shops, MAX Station, Shute Park + More! [Home Energy Score = 3. HES Report at https://rpt.greenbuildingregistry.com/hes/OR10229288]
Extras & features
Oven, Cooktop, Dishwasher, Disposal, Free-Standing Refrigerator, Range Hood
Legal description
GATES ADDITION TO HILLSBORO OREGON, LOT 5, ACRES 0.21
Walk Score® data provided by Walk Score