/
$423,500
4days on market$423,500
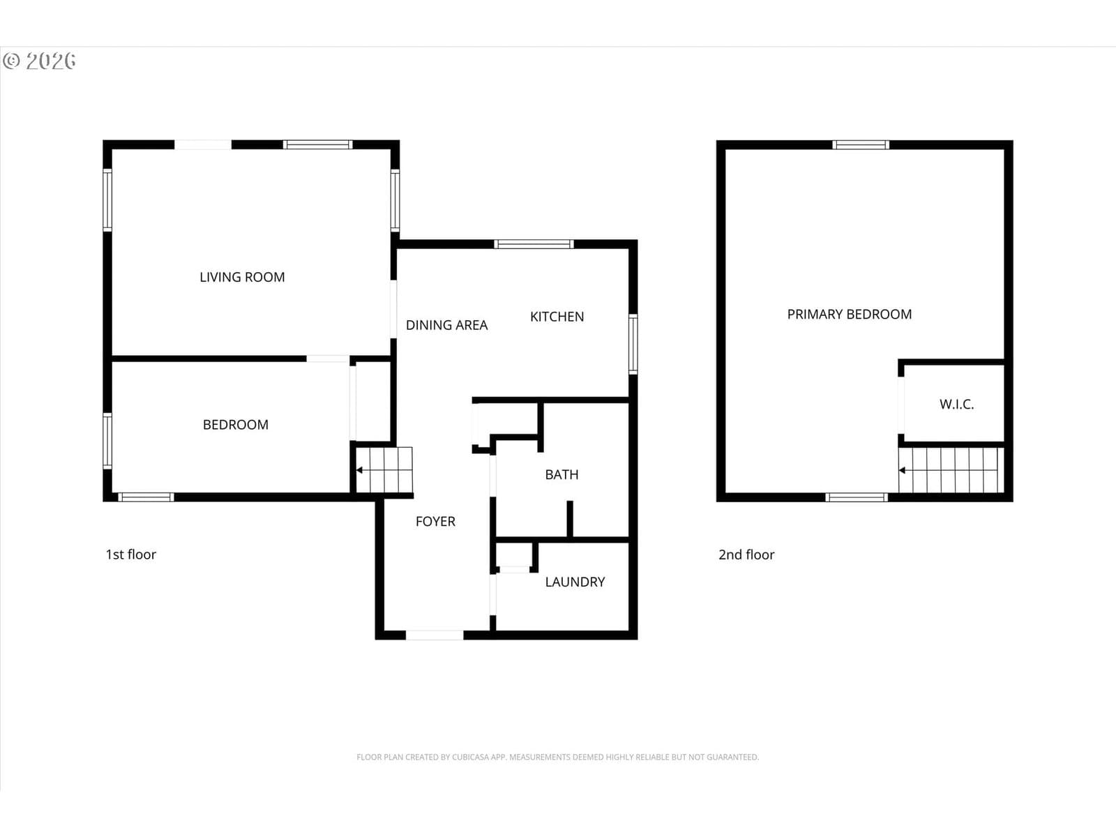
Charming & IMPECCABLE 1900's Bungalow on a IMPRESSIVE corner lot just minutes from downtown Oregon City’s & all the fun shops & restaurants. This 2-bedroom, 1-bath home with plenty of room to add an office, work out or nursery space in mudroom or oversized primary suite does offer options! Eat in kitchen can accommodate dining as well! Newer interior paint, ample attic storage (180 sq ft), new laminate flooring on the main level, newer dishwasher, updated wiring and updated plumbing, a new roof (2022) and new exterior paint (2025). This GEM offers character & charm of the 1900's bungalow we LOVE but w/ the added peace of mind from all these expensive updates that are done! Enjoy efficient ductless heating & A/C on the main + a dedicated upstairs A/C unit for added comfort. Situated on an oversized 8,864 sq ft level corner lot, the property includes a fire pit, custom greenhouse made w/ reclaimed wood from the house + raised garden beds ready for your inner Urban Farmer! Detached single-car garage/shop with 220 power & 200amp service + power for a RV and all the onsite parking you will ever need. The generous lot and corner positioning may offer potential for an ADU or additional use—buyer to verify with the City. 1 year Home Warranty is included. Hurry!
Extras & features
Gas Water Heater, Dishwasher, Disposal, Free-Standing Gas Range, Free-Standing Range, Free-Standing Refrigerator, Plumbed For Ice Maker
Legal description
44 PLEASANT PLACE LT 3 PT LT 4 BLK 5
Walk Score data provided by Walk Score®