/
$624,960
174days on marketSold$624,960 · February 3, 2026
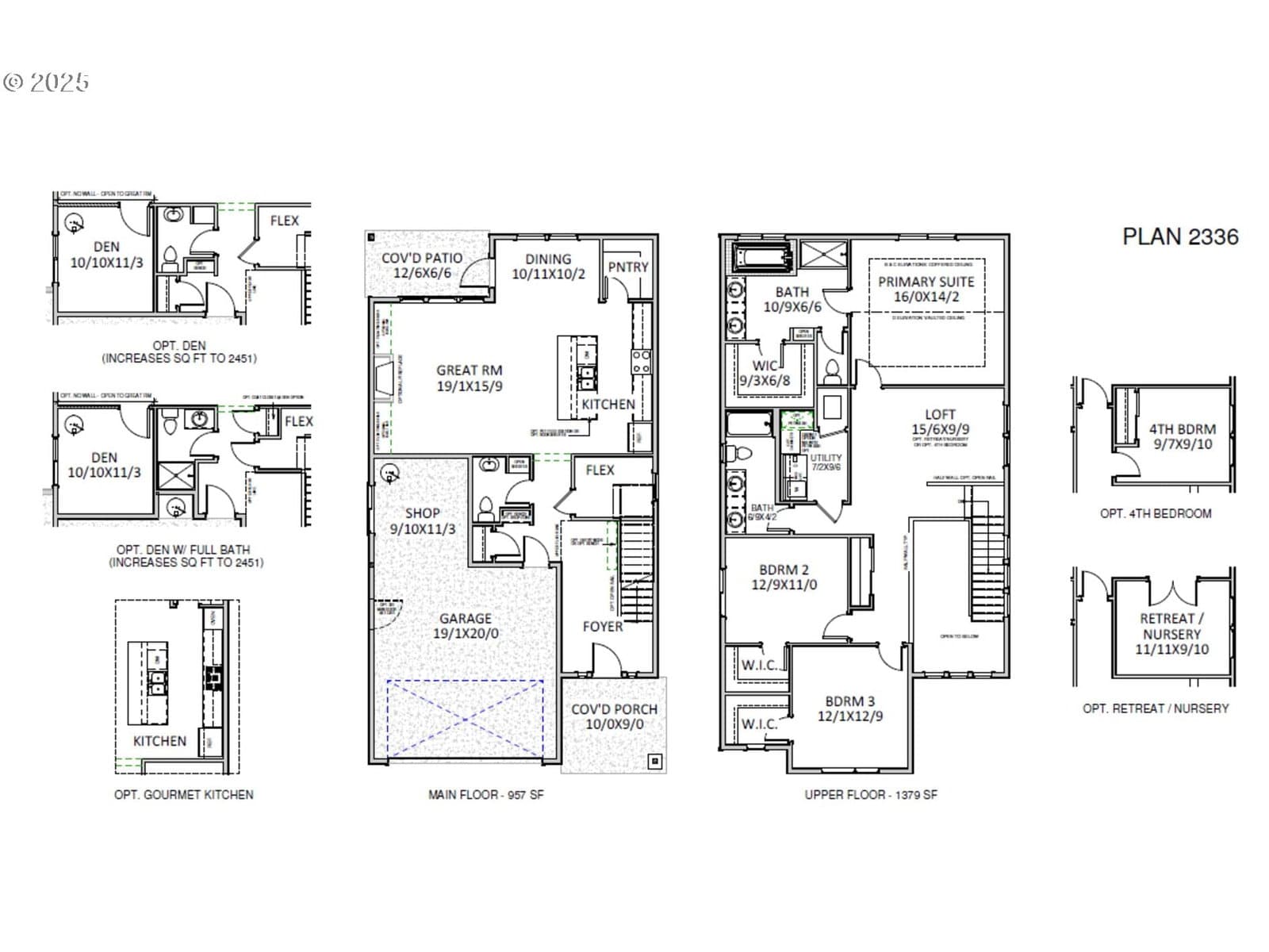
Complete in January 2026! Beautiful new 2336 sq ft floor plan with great room concept, dining nook, flex space, den & full bath on the main floor plus an extended primary suite and three additional bedrooms, two with walk-in closets on the second level. Home features a gas fireplace, 9ft ceilings on main, quartz countertops throughout, gas range, dining nook, large primary bedroom with walk-in closet & soaking tub. High efficiency heat pump with A/C, 65-gallon heat pump water heater, fencing, covered patio, front yard sod and irrigation included. Community features walking trails, green spaces, and park areas. Sample images - actual finishes and colors will vary. Other homes also available.
Extras & features
Dishwasher, Disposal, ENERGY STAR Qualified Appliances, Free-Standing Gas Range
Legal description
GREELY FARMS PH 3A LOT 23
$624,960
Building amenities
Walk Score data provided by Walk Score®